Call Us (651) 341-8840

Save
Ask
Tour
Hide
Share
$1,268,500
12 Days On Site

561X Heather Ridge Court
Shoreview, MN 55126

For Sale|Single Family Residence|Active
3
Beds
3
Total Baths
1
Full Bath
2
Partial Baths
2,753
SqFt
$461
/SqFt
2026
Built
Subdivision:
The Estates Of Heather Ridge
County:
Ramsey
Listing courtesy of Edina Realty, Inc.
Call Now: (651) 341-8840
Is this the listing for you? We can help make it yours.
(651) 341-8840
561X Heather Ridge Court561X Heather Ridge Court561X Heather Ridge Court561X Heather Ridge Court
Save
Ask
Tour
Hide
Share

Mortgage Calculator

Monthly Payment (Est.)

$5,787
Calculator powered by Showcase IDX, a Constellation1 Company. Copyright ©2025 Information is deemed reliable but not guaranteed.

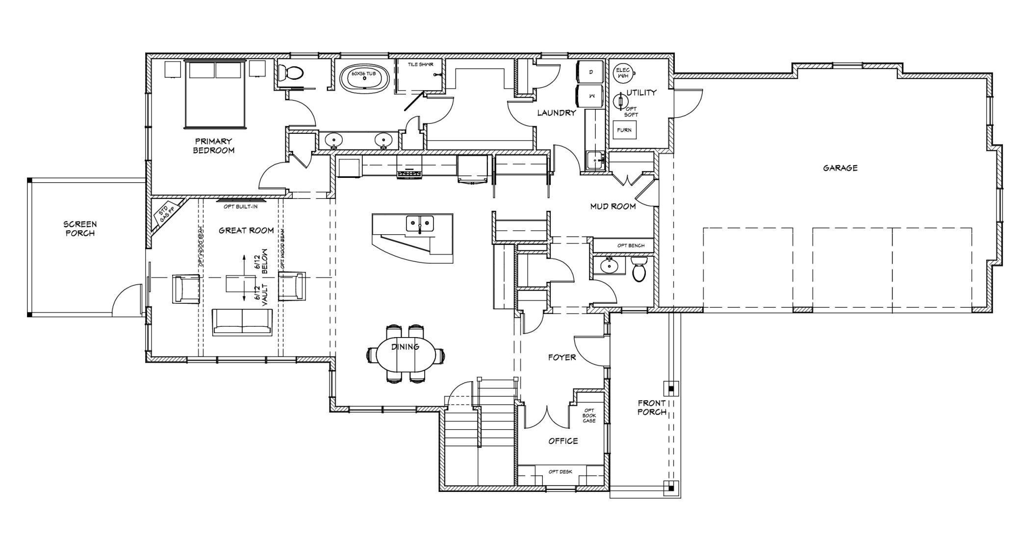
Rare Opportunity: Build Your Dream Home with Pratt Homes on a Private Shoreview Cul-de-sac Lot Create your personal sanctuary surrounded by woods and wetlands on this 1.54-acre lot in a prime Shoreview location. Nestled at the end of a quiet cul-de-sac, this is a rare opportunity to partner with renowned Pratt Homes to design and build the custom home you've always envisioned. This proposed TO-BE-BUILT plan emphasizes main-level living, blending functional design with high quality finishes. The open floor plan is an entertainer's delight, featuring a vaulted great room, a gourmet kitchen with a convenient butler's pantry, a generous dining area, and a seamless flow designed for modern life. The main-level owner's suite is a private retreat with a luxury bath and a large walk-in closet connected to laundry. A charming screened-in porch provides a peaceful space to enjoy the surrounding woods and wetlands. A dedicated main-level office, half bath and mud room complete the main level. The upper level offers a large family room, two additional bedrooms, and a 3/4 bath. Your Home, Your Design - The provided floor plan is just the beginning. Pratt Homes offers full customization options, allowing you to personalize every finish and fixture to reflect your unique style and needs. You can modify this plan or collaborate with our expert team to design the home you desire. Premier Location & Lifestyle - This property is situated in the highly sought-after Mounds View School District, a significant draw for families. Shoreview itself provides a coveted lifestyle with abundant natural amenities, offering easy access to beautiful lakes, beaches, parks, trails, and open spaces for endless outdoor recreation. Don't miss this chance to build a legacy home in an irreplaceable location. Contact us today to schedule a site tour and begin the journey of building your dream home.

Save
Ask
Tour
Hide
Share
Listing Snapshot
Price 
$1,268,500
Days On Site 
12 Days
Bedrooms 
3
Inside Area (SqFt) 
2,753 sqft
Total Baths 
3
Full Baths 
1
Partial Baths 
2
Lot Size 
1.54 Acres
Year Built 
2026
MLS® Number 
6825660
Status 
Active
Property Tax 
$2,192
HOA/Condo/Coop Fees 
N/A
Sq Ft Source 
N/A
Friends & Family
Recent Activity
a week agoListing updated with changes from the MLS®
2 weeks agoStatus changed to Active
2 weeks agoListing first seen on site
General Features
Acres 
1.54
Attached Garage 
Yes
Garage 
Yes
Garage Spaces 
4
Land Lease 
No
Levels 
One and One Half
Number Of Stories 
1
Parking 
AsphaltShared DrivewayGarage Door OpenerAttachedDriveway
Property Sub Type 
Single Family Residence
Sewer 
Public Sewer
SqFt Above 
2753
Utilities 
Underground Utilities
Water Source 
Public
Zoning 
Residential-Single Family
Interior Features
Appliances 
Electric Water HeaterOther
Basement 
None
Cooling 
Central Air
Electric 
Circuit Breakers200+ Amp Service
Fireplace 
Yes
Fireplace Features 
Gas
Fireplaces 
1
Flooring 
Hardwood
Heating 
Natural GasForced Air
Interior 
Breakfast BarKitchen IslandVaulted Ceiling(s)Walk-In Closet(s)
Laundry Features 
Laundry RoomMain Level
Bedroom 
Dimensions - 14x13Level - Main
Bedroom 2 
Dimensions - 11x12Level - Upper
Bedroom 3 
Dimensions - 12x15Level - Upper
Dining Room 
Dimensions - 10x14Level - Main
Family Room 
Dimensions - 15x18Level - Upper
Great Room 
Dimensions - 16x18Level - Main
Kitchen 
Dimensions - 15x16Level - Main
Laundry 
Dimensions - 11x7Level - Main
Mud Room 
Dimensions - 7x10Level - Main
Office 
Dimensions - 8x9Level - Main
Pantry (Walk-In) 
Dimensions - 9x5Level - Main
Primary Bathroom 
Dimensions - 9x14Level - Main
Screened Porch 
Dimensions - 12x14Level - Main
Walk-In Closet 
Dimensions - 11x9Level - Main
Save
Ask
Tour
Hide
Share
Exterior Features
Lot Features 
Cul-De-SacWoodedIrregular Lot
Patio And Porch 
PorchCoveredFront PorchRear PorchScreened
Road Frontage 
City Street
Roof 
AsphaltShingle
Community Features
Roads 
Paved
School District 
Mounds View
Township 
Shoreview
Schools
School District
Mounds View
Elementary School
Unknown
Middle School
Unknown
High School
Unknown
Listing courtesy of Edina Realty, Inc.



Listing information is provided by Participants of the Northstar MLS. IDX information is provided exclusively for personal, non-commercial use, and may not be used for any purpose other than to identify prospective properties consumers may be interested in purchasing. Information is deemed reliable but not guaranteed. Copyright 2025, Northstar MLS.
Last checked: 2025-12-21 06:42 PM UTC

Neighborhood & Commute
Source: Walkscore
Save
Ask
Tour
Hide
Share
Skip to content